建築家と素敵な家づくり




▲一見、家全体を囲われているように見えるが、塀にスリットを入れることで、
また玄関を開放することで、それぞれの場所から中庭を“チラッと”見ることができる。
夜ともなれば、室内で点けられた暖色の白熱灯の灯りが漏れ、辺りを優しい雰囲気に演出する。
建築家・久住さんとの出会いは、ある意味で必然だった!?
『建てようネット』を利用する前から久住さんの存在は知っていたというTさん。
会社の先輩の居宅が久住さんの設計によるもので、その佇まいに惚れたがために、
久住さんに依頼することがある程度は決まっていたそうです。
しかし、「もっとたくさんの建築家の作品を見て、それでも久住さんにお願いしたいと思ったら、
その時にお願いしようと思ったんです」という理由から『建てようネット』にご来場いただきました。
「Tさんほど、建築についてじっくりと噛み砕いて、深く理解されているお施主さんは少ないと思います」と、
建築家の久住さんも舌を巻くほど勉強熱心。街を歩き、
気になった建築物は写真を撮ったり、心に留めておいたり。
『建てようネット』主催の見学会にも足を運んで建築家の話に耳を傾け、
実際に『建てようネット』に来場した時には、ライブラリーで建築家の作品を熟読し…。
「おかげで、土地を購入してから久住さんにお願いするまでに、
すごく時間がかかってしまいました」と苦笑いするTさんですが、
家という一生に一度の買い物をするにあたっては、
そうして吟味に吟味を重ねるのが正しい姿なのかもしれません。
緩やかな“つながり”が、街並みとの調和を生み出す
Tさんが購入した土地は、国道から少し入った閑静な住宅街。
周辺には学生用マンションをはじめ、学習塾や公園などがあり、
日中は人通りの多い場所にありました。普通であれば、
家の中を見られないために塀を高く設置するといったオーダーをしそうなものですが、
Tさんの感覚はまったく逆。「できるだけ街並みに開放した家にしたいという希望を久住さんにはお伝えしました。
閉ざされた家で、周囲から“どんな人が住んでいるの?”と不審がられるような家にしたくなかったんです」。
東日本大震災を機に生まれた、周囲との“つながり”を大事にしたいという思いが、そうさせたそうです。
それに対する久住さんの答えは、写真を見ての通り。
確かに目隠し的な塀はあるものの、横長のスリットを入れることで空気は流れ、
そして敷地内外の空気感は一体化。スリットは3つ入っており、
それぞれが大人の膝、胸、頭上の高さになっているため、かがんだり、
また背伸びしたりしないと中が見られないようになっています。
また、「外から中庭を見る、この眺めが好きです」とTさんもお気に入りなのは、
開放された玄関口。玄関ポーチを通して中庭までを見通すことができ、
プライバシーはしっかりと守りながらも、街並みとの“つながり”が見事に表現されています。
ナラ材のフローリング、そして北欧家具が温かみを醸す
室内に入るとそこには、なんとも言えない澄み切った雰囲気が漂っています。
それはもしかすると、整然とした空間設計だからなのかもしれません。
ある種の緊張感のようにも感じられますが、
そんな中にも、ナラ材のフローリングやYチェアをはじめとする北欧家具たちが、
絶妙な温かみを醸しています。そんなバランス感覚こそが久住さんの、
そしてTさんの理想としたところでした。「家って、ただぐうたらするだけの場所じゃなくて、
安らげる中にも凛とした雰囲気が必要だと思うんです。
一見、矛盾するようにも思えますが、両方の価値観を久住さんが見事に融合してくださいました」。
思えば、プライバシーを守ることと開放性を持たせることも然り。
t住宅は、矛盾を融合させることでいかに心地良い暮らしを実現させられるかという証明であり、
建築家ならではの手腕が発揮された建物と言えるでしょう。


▲塀のスリットからは、計算されたかのように光が差し込む。
ちなみにこちらは、エントランスを入って左手のフリースペースで、奥は日用品を収納する倉庫。

▲中庭から書庫を見る。逆に言えば、書庫からも中庭を広く見晴らすことができ、
「図書館にいるみたいで、ここでの読書の時間が至福です」とTさん。

▲南から見た外観は無機質な感じにも見えるが、東側には杉板があしらわれ、
柔らかな雰囲気を醸している。これもまた“街との調和”を意識した仕様。

▲暗くなりがちな玄関も、大きく窓を取ることで太陽の光が
差し込む明るい空間になる。塀で建物を囲まれているために、
プライバシーを確保できていることの賜物だ。

▲北欧家具が整然とレイアウトされたダイニングには、
建築家、そして施主のTさんの思惑である“凜とした雰囲気”が漂っている。





▲「夜には夜の、心身を落ち着かせるような灯りが必要」という久住さんの考えにより、
暖色の白熱灯が気持ちを安らげてくれる。


▲ハンス・J・ウェグナーのデザインによる(左から)「GE290」「ウイングチェア」
「イージーチェア」。ショールームのようにレイアウトされ、
温かで、優しい雰囲気を演出している。
Tさんの夢を叶えた建築家/建築家・久住高弘
設計コンセプト
「敷地は、徳島文理大学徳島キャンパス南に位置する。周辺には学生マンション、学習塾が点在し、東南に6m道路を有する角地と恵まれた環境にある。南敷地境界側の自転車置き場とテラス外壁には、横長スリットを設け、東側に配置した玄関ポーチを中庭まで開放することで、t住宅は緩やかに街並みと連続する」
建築データ
■構造
木造
■工法
在来軸組工法
■敷地面積
242.19㎡(約73.26坪)
■延床面積
合計 181.39㎡(約54.87坪)
1階 86.96㎡(約26.31坪)
2階 71.25㎡(約21.55坪)
車庫 23.18㎡(約7.01坪)
■スケジュール
設計期間 2011年11月~2012年4月
工事期間 2012年5月~2012年12月
■設計監理
久住建築設計事務所
■施工
司工務店

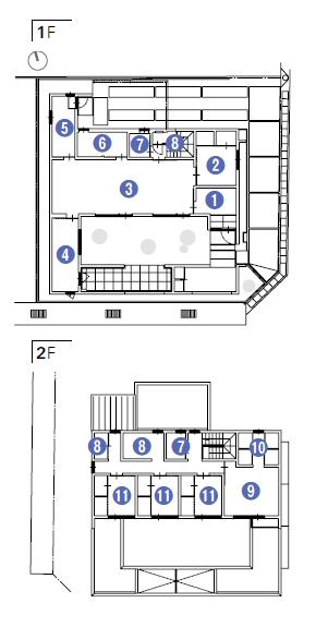
T邸間取り
1 玄関
2 和室
3 LDK
4 書庫
5 家事室
6 洗面 浴室
7 WC
8 収納
9 寝室
10 クローゼット
11 子供室





































敷居の高いイメージの建築家を建てようネット[徳島]が無料でマッチングします。

あなたの家づくりを叶える徳島の有名建築家22
リンク先はこちらから。



































建てようネットグループ
建てようネット[和歌山]
建てようネット[大分]
建てようネット[香川]
*加盟FC随時募集中。和歌山・大分・香川以外の地元媒体社の方、
読者と建築家のマッチング事業やりませんか?
詳細は、お電話かメールで。
*建てようネットのシステムの詳細はこちらを参照に。

































